Peter S Posted March 3 Share Posted March 3 Hi everyone, new user here. I've been meaning to switch to a BIM platform for years and am about to dive in and purchase Vectorworks. (Previously acad & rhino based). I chose this over others for a variety of reasons, mainly because it seems to have great modeling tools, BIM capability, is mac native, and has a more refined graphics engine than some of the other BIM options. Curious to hear about why folks on the forum choose VW over other BIM programs. Are you guys generally happy with the program, the updates to functionality that have been added over the years, and the current "roadmap"? I hear a lot of frustration from users of Revit and Archicad over lack of updates or fixes to issues. Appreciate any feedback! Quote Link to comment
Popular Post Christiaan Posted March 4 Popular Post Share Posted March 4 Congratulations and welcome aboard. Vectorworks chose me; the first architect I worked for used Vectorworks, maybe even MiniCAD. And then about 30 years later I chose Vectorworks; I had a chance recently to retrain in Revit or ArchiCAD and in the end I made the decision to double down on Vectorworks, which I'm glad I did because I really like the direction it's been going in these last few years, and Vectorworks have some great talent onboard. I used to complain a lot, and there was a lot to complain about. My love/hate relationship used to be 30% love, 70% hate. But now it's more like 90% love, 10% hate. The UI overhaul a few years ago helped too; now I really love being absorbed in Vectorworks. There are bits and pieces lying around that are utterly diabolical and infuriating, but with complex programmes like these I guess there is always going to be a bit of that. So don't think for a second that you're going to get away from things that aren't fixed; that exists here too. But Vectorworks are going in the right direction, which is the main thing, and they have some engineers who are superb communicators. Which one you go with can also really depend on who you're working with, what you're producing and for who. What sort of work are you going to be doing with Vectorworks, in what kind of work environment, and for who? 7 Quote Link to comment
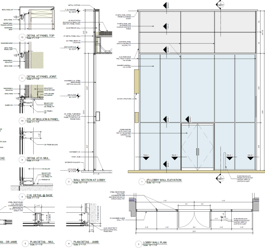
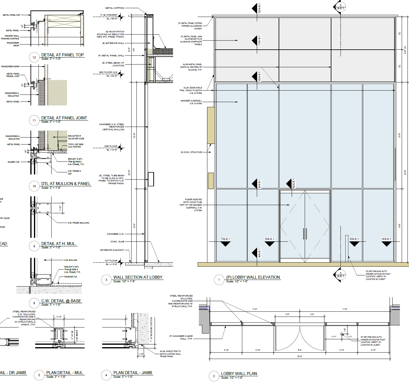
Popular Post GregG Posted March 4 Popular Post Share Posted March 4 (edited) Enjoy working in Vectorworks! Yes, it's what Christiaan said. Vectorworks is good at handling work from stage zero to final construction documents, all in one software package. It’s a flexible tool and is competent at creating reports. One shortcoming is the need to share files with the Revit environment. Translating to Revit has been improving lately. A bit of history: While employed at other firms, I was fortunate to be trained in several systems. Arris, AES, MicroStation, AutoCAD, and lastly Revit. Practices adopting Unix, Apple, or DOS/Windows systems influenced that long list. The expectation was that modeling in FormZ and rendering in 3D Studio was to be figured out on your own time. While preparing to start my own firm, I began testing out ArchiCAD and Vectorworks. At first, I decided to go with a combination of Vectorworks Architect and AutoCAD. We needed ACAD to interact with engineers efficiently. Currently, the setup is mostly Vectorworks. Sometimes, Revit would be utilized for construction documentation and collaborating with engineers on larger projects. Most engineering consultants are Revit-based in my area. In general, Vectorworks delivers a good balance of capabilities for design-oriented small to midsize commercial, hospitality, and residential projects. Most of the work we do is heavy on presentations. Revit alone is not great in this regard. Vectorworks, on the other hand, is handy if you like to produce presentable construction drawings. The example below is a VW-created late DD or early CD-level Lobby entry wall page. I'm pretty sure others have nicer drawings to show. Edited March 4 by GregG 4 1 Quote Link to comment
Tom W. Posted March 4 Share Posted March 4 13 hours ago, Peter S said: I hear a lot of frustration from users of Revit and Archicad over lack of updates or fixes to issues. That's interesting to know. 2 Quote Link to comment
shorter Posted March 6 Share Posted March 6 On 3/4/2026 at 12:29 AM, Christiaan said: Congratulations and welcome aboard. Vectorworks chose me; the first architect I worked for used Vectorworks, maybe even MiniCAD. And then about 30 years later I chose Vectorworks; I had a chance recently to retrain in Revit or ArchiCAD and in the end I made the decision to double down on Vectorworks, which I'm glad I did because I really like the direction it's been going in these last few years, and Vectorworks have some great talent onboard. I used to complain a lot, and there was a lot to complain about. My love/hate relationship used to be 30% love, 70% hate. But now it's more like 90% love, 10% hate. The UI overhaul a few years ago helped too; now I really love being absorbed in Vectorworks. There are bits and pieces lying around that are utterly diabolical and infuriating, but with complex programmes like these I guess there is always going to be a bit of that. So don't think for a second that you're going to get away from things that aren't fixed; that exists here too. But Vectorworks are going in the right direction, which is the main thing, and they have some engineers who are superb communicators. Which one you go with can also really depend on who you're working with, what you're producing and for who. What sort of work are you going to be doing with Vectorworks, in what kind of work environment, and for who? How much are they paying you? 😉 3 Quote Link to comment
Popular Post shorter Posted March 6 Popular Post Share Posted March 6 There is not a lot you can't do in Vectorworks other than change the attitude of those that don't use it. 3 2 Quote Link to comment
Christiaan Posted March 6 Share Posted March 6 2 hours ago, shorter said: How much are they paying you? 😉 I meant every word of it. I am genuinely enjoying Vectorworks these days. 90% of the time! 😆 1 2 Quote Link to comment
zoomer Posted March 6 Share Posted March 6 (edited) 19 minutes ago, Christiaan said: I am genuinely enjoying Vectorworks these days. 90% of the time! 😆 For me that was similar, but with VW 2015, VW 2017 and VW 2019, together with C4D. But I may already have missed something, as AFAIR I already added my first Bricscad license with V17. To be fair, I used VW from VW 2014 - VW 2026, which is about 13 Years and so longer than any other CAD/BIM I used before. Edited March 6 by zoomer Quote Link to comment
Jeff Prince Posted March 6 Share Posted March 6 41 minutes ago, Christiaan said: I meant every word of it. I am genuinely enjoying Vectorworks these days. 90% of the time! 😆 But you didn’t answer the question 😉 Quote Link to comment
shorter Posted March 7 Share Posted March 7 16 hours ago, Christiaan said: I meant every word of it. I am genuinely enjoying Vectorworks these days. 90% of the time! 😆 Time to resurrect needles and pins, methinks! Quote Link to comment
Christiaan Posted Tuesday at 08:07 PM Share Posted Tuesday at 08:07 PM On 3/7/2026 at 8:44 AM, Jeff Prince said: But you didn’t answer the question 😉 Just to be clear, I am not on the VW payroll 😆 Quote Link to comment
Vectorworks, Inc Employee Matt Panzer Posted Wednesday at 12:02 AM Vectorworks, Inc Employee Share Posted Wednesday at 12:02 AM 3 hours ago, Christiaan said: Just to be clear, I am not on the VW payroll 😆 But I now owe you a pint the next time you’re in town. 😉 1 Quote Link to comment
Vectorworks, Inc Employee tdiamond Posted Thursday at 12:45 AM Vectorworks, Inc Employee Share Posted Thursday at 12:45 AM On 3/11/2026 at 7:07 AM, Christiaan said: Just to be clear, I am not on the VW payroll 😆 +1 to @Matt Panzer's comment if you are ever in the Antipodes! 😎 1 Quote Link to comment
Recommended Posts
Join the conversation
You can post now and register later. If you have an account, sign in now to post with your account.
Note: Your post will require moderator approval before it will be visible.