Wood Posted April 17, 2025 Share Posted April 17, 2025 My sheet looks great, with objects rendered in correct 3D. When I use publish to generate PDF, the layering and line weight get ugly. What am I doing wrong? In the shots below, you can see the grey items should be occluded by the LED system as they are in the sheet, but it is all messed up in the PDF. Thanks! Quote Link to comment
Pat Stanford Posted April 17, 2025 Share Posted April 17, 2025 If I remember correctly, PDF does not handle transparency very well. You might need to export image files and then compose them into a PDF. Or someone will tell me I am completely off base and give you the correct answer. 😉 Quote Link to comment
Jesse Cogswell Posted April 18, 2025 Share Posted April 18, 2025 There are a couple of things going on here. One of them is that it looks like the export isn't respecting a Clip Cube. Make sure that you have the Viewport fully updated before exporting the PDF, I've seen a couple of things not quite work properly if you let VW update it as part of the export. The other issues have to do with lineweight and default Gray transparency. By default, VW doesn't realistically show lineweight so that it's easier to make sure lines objects are snapped where they should be (and it's also much easier on the processor and graphics card). Whenever I'm editing Sheet Layers (placing sheet notes, setting the Title Block, placing annotations, etc), I make sure that I have Zoom Line Thickness engaged. This will properly show lineweight and will give you a better idea of how something is going to print. This option can be toggled by going to Vectorworks Preferences - Display - Zoom line thickness (slow) or by using the quick preference in the upper right of the mode bar. As for default Gray transparency, it appears that you have a couple of layers set to "Gray" so that they appear transparent. This has an entirely different setting when exporting, and the default value is quite high (69%). I find that 40% is much more appropriate and matches what is shown in VW. This value can be changed through the File - Export - Export PDF dialog box, in a setting called Gray Level for Grayed Layers and Classes. And what @Pat Stanford says about PDFs being a bit tricky with transparency also has merit, though in my experience it shows more when printing the PDF than with the PDF itself, which tells me it's likely more of a printer driver issue. 2 Quote Link to comment
Elite Exhibits Posted April 19, 2025 Share Posted April 19, 2025 @Wood Above items are good for checking issues We have found that PUBLISH is often the issue, while print appears to create what is seen on the screen - (Mac Book Pro) We Publish a set of Sheet Layers to PDF - then review and swap out those pages that have anomalies with a solo print to PDF created from the offending Sheet Layer @Pat Stanford comment on export as an Image is also good - with the Mac screen shots are easy to create and convert to PDF or ... Create another blank Sheet Layer with title block and drop the above screen shot / image export into it - crop (if needed...) this bitmap to show page content / no title block -the blank Sheet Layer title block could then have the needed project information, while the mating / offending Sheet Layer could be turned off in the OIP Peter Quote Link to comment
Pat Stanford Posted April 19, 2025 Share Posted April 19, 2025 @Dave Donley posted recently in another thread about color differences in PDFs. Quote Link to comment
BartH Posted April 19, 2025 Share Posted April 19, 2025 1 hour ago, Pat Stanford said: @Dave Donley posted recently in another thread about color differences in PDFs. This thread was about PNGs. I think the PDF issue is different. I also agree that PDFs don't handle transparency well. It is a well-known issue in printing graphics for signage etc. Print production often has a RIP process (raster image processing ) that takes all of the layers of a doc and renders them as one image There is an option in Acrobat to Flatten Transparency. That will often get rid of artifacts. and keep the geometry intact. but it is a little wonky to use. You can achieve a similar result in VW by enabling the Rasterize PDF option. Of course, you lose snappable geometry in the PDF. But you gain more consistent output of graphics and transparency. Quote Link to comment
Wood Posted April 22, 2025 Author Share Posted April 22, 2025 Ok a few things to respond to here. @Jesse Cogswell Yes, it is ignoring Clip Cube for sure. All viewports are current when I export/print and no improvement. Still looks great on the sheet. The main issue here is what would equate to hidden line that is malfunctioning. Items that are well behind objects in the foreground in the 'physical' Design layer are drawn in front of other elements. The occlusion is messed up. For example in drawing 2, the words Zero Zero are behind and below the Opaque LED ring. These should not be visible, regardless of layer order. I'm familiar with the transparency setting, and that doesn't change my PDF outputs. But thank you for the detail. Zoom Line thickness doesn't change anything for me either. If you look closely you can see that my Sheet layer render settings do not draw object edges, but in the PDF it does. @Elite Exhibits No improvement using the Print dialogue and exporting as PDF, or using the direct Export to PDF option. The idea that I would need to spend the time exporting renderings as jpg or taking screenshots and bringing them back into my sheet layer is preposterous and I absolutely will not participate in that waste of my time for software that is explicitly designed to turn 3D models into printable, viewable sheet layers for construction. It's literally the only reason I, or probably any of us, pay for the software. Printable/shareable sheets. I appreciate everybody's advice for workarounds and I know it's well intended, but maybe the devs should solve the basic problems before making another useless cable tool that doesn't work. Perhaps I'm ignorant to a setting, but it seems to me that if it looks perfect on your sheet layer, you shouldn't need advanced VW knowledge to make it come out as a PDF or a piece of paper looking reasonably similar. /Rant Thanks for the advice everybody. 1 Quote Link to comment
BartH Posted April 22, 2025 Share Posted April 22, 2025 @Wood Any chance you can post a test file? I am proposing that you have a PDF problem not a VW problem. I don't think you need to import anything back into VW, but you might need to reprocess the PDF inside Acrobat. There may be ways to tell the PDF how to represent what VW is showing in a SLVP more accurately. Quote Link to comment
decayny96 Posted November 12, 2025 Share Posted November 12, 2025 I am having similar problems with pdf's . In my specific case, ghosts of something i had pasted into my design layer - a group with cabinets in this instance - shows up in my pdf. This happens regardless if i export it by itself , or publish it as part of a set. The offending item does not appear in the sheet layer. I went back to the design layers - turned on all my classes - and the objects are not there - i had deleted them already. I tried several things - quitting the app and reopening the file. Quitting VW and restarting my computer. Creating a new sheet layer and copying and pasting in the sheet layer viewport. But still w/ the same results - the ghost cabinets still appear in the pdf only. I did recall as i was working in the DL yesterday, that the items i was deleting would not disappear from the screen right away. I would have to pan to an area where they were offscreen - and then pan back for them to disappear. I am in VW2025 Update 7. On a MacBook Pro M3 Max Chip 129 GB of RAM running OS Sequioa 15.6.1 LIDO-Plans-2025-1112.vwx Quote Link to comment
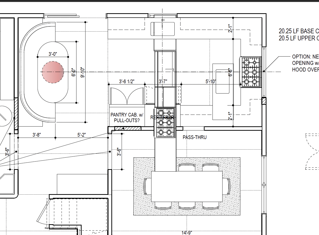
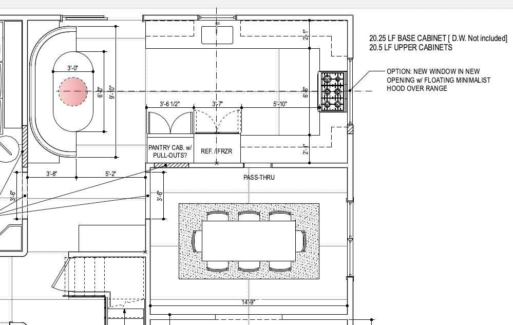
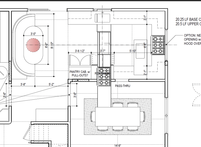
decayny96 Posted November 17, 2025 Share Posted November 17, 2025 AH, I finally figured out my issue. I had made the Counter using the floor tool on a different project - and had cut and pasted it along with the cabinets that were in the group - and used them to make my new kitchen. I had thought maybe the re-used cabinets were the culprit. I tried deleting all my cabinets - but still the ghosts appeared in the pdf. I also tried fiddling with some document [cache settings - which had no effect] and VW preferences [ Display - "Accelerate Graphics" ] I had had the Accelerate graphics box checked. When i unchecked it and went back to the SLVP, the Ghosts were appearing there too! Finally i tried keeping the re-used cabs, but deleting the counter Floor object - and lo and behold - Problem solved. I then replaced the cannaballized floor / counter with a new Counter - this time using the VW Countertop Tool - which works like a charm - including inserting automatically my sink. 1 Quote Link to comment
Recommended Posts
Join the conversation
You can post now and register later. If you have an account, sign in now to post with your account.
Note: Your post will require moderator approval before it will be visible.