NoodlesT Posted April 15, 2025 Share Posted April 15, 2025 Hi everyone. I'm struggling to create appropriate bends for a metal manufacturer online, my experience is mostly with Spotlight so precise 3D works is a difficulty for me. I cannot find a way to create appropriate bends that have bend radius and bend angle. I can create a shape that looks like it, but the bends are not properly made as requested here: https://247tailorsteel.com/en/submission-guidelines/guidelines-for-bending What I'm trying to achieve: (drawn in SketchUp) 2mm metal plate with bends: The guidelines for 2mm metal bends are these: How should I approach this? I have tried working from 2D object or trying to bend with Deform tool a 3D object, but the bend radius is too big... I have attached SketchUp file with the full structure for reference. Bends2mmsheet.skp Quote Link to comment
Tom W. Posted April 15, 2025 Share Posted April 15, 2025 Can't you just use Fillet Edge tool to apply the desired radii to the edges...? Quote Link to comment
NoodlesT Posted April 15, 2025 Author Share Posted April 15, 2025 I can create a shape like this, but the software wont recognize it as a proper bend. See attached an example of extruded shape. StC_v1.vwx Quote Link to comment
VIRTUALENVIRONS Posted April 15, 2025 Share Posted April 15, 2025 @NoodlesT Are you trying to apply bends to the Sketchup model, or a model you created? If it is a Vectorworks model, I would do the following 1 Build the model as a surface model, no thickness. Using the NURBS tool palette or 3D tool palette ``2 Shell the object to the desired thickness ``3 Use the Fillet tool (3D NURBS tools) and apply an inner and outer radius. Quote Link to comment
bcd Posted April 15, 2025 Share Posted April 15, 2025 Try testing with a simple 1 bend sample with standard thickness and take it from there. Quote Link to comment
VIRTUALENVIRONS Posted April 15, 2025 Share Posted April 15, 2025 @NoodlesT HI Noodles. Having bent some sheet metal over half a century ago, I remember some of the manufacturing problems. Is this something like what you are trying to do? This is not to your scale, just a mock up. SHEET METAL.vwxSHEET METAL.vwx Quote Link to comment
NoodlesT Posted April 15, 2025 Author Share Posted April 15, 2025 4 minutes ago, VIRTUALENVIRONS said: @VIRTUALENVIRONS hey, somehow the file is not opening up.. I'm using VWX 2024. Could that be an issue? Quote Link to comment
VIRTUALENVIRONS Posted April 15, 2025 Share Posted April 15, 2025 I put it back to 2023SHEET METAL v2023.vwx Quote Link to comment
BartH Posted April 15, 2025 Share Posted April 15, 2025 It looks to me like your radii are off, The inside radius should match the tolerances on your info sheet (2mm) If your material is 2mm thick, then the outside radius should be 4mm (not 2mm) I would work in this manner: Model the whole piece up with no fillets Add inside fillets per the tolerance sheet (2mm?) Then add the outside fillet (material thickness + interior fillet) In reality, a sheet metal bend deforms the material; more advanced software can calculate the deformation and adjust the flattened parts dimensions so that bends stretch the material to fit the final desired shape. I'm guessing that that is what this Sophia® software is trying to accomplish 1 Quote Link to comment
propstuff Posted April 15, 2025 Share Posted April 15, 2025 Ditto what bart said When I've done this for manufacturing, the VW model made this way can be taken in to a more manufacturing oriented software (eg Fusion) which can correctly unfold the piece with the appropriate bend allowance for the material, thickness, and radius to be LASER cut the correct size. VW cannot do this but perhaps that's what Sophia does. Quote Link to comment
P Retondo Posted April 16, 2025 Share Posted April 16, 2025 Doing this requires a proper knowledge of bend allowances. You can look that up on the web for guidance, this is very technical. Quote Link to comment
Steve S. Posted April 16, 2025 Share Posted April 16, 2025 (edited) Years ago I used Simpson Strong Tie to fab up custom sheetmetal connectors. It was quite a few years back so I can’t remember what it was that I had them make. But if memory serves me correctly, one time I had them make maybe 3 or 4 dozen parts all of the same design. Each part maybe around the size of a 2 x 6 joist hanger. Likely either 20 or 18 gauge. For this order I made up a 3D drawing (orthogonal isometric) like you would see in the Simpson catalogs you would pick up from the local lumber yard. For this custom order, I DID NOT furnish them flat unfolded drawings. More recently I had a smaller sheetmetal fabrication company fab up heavy L shaped angles out of 1/4” thick steel. For this I used a mechanical CAD program that had sheetmetal tools which included a K-factor input field. The drawings consisted of 5 different views. Isometric, front, side, and top views. And also a flat patten view - which is an unfolded view which gave the proper unfolded dimension. So the mechanical CAD program would generate the flat pattern view. And the flat unfolded dimension of the part depends partly on the K-factor. https://www.youtube.com/watch?v=f-4PRnNGEnQ&t=4s Do a Google search on --- k factor in bending sheet metal Edited April 16, 2025 by Steve S. 3 Quote Link to comment
NoodlesT Posted April 16, 2025 Author Share Posted April 16, 2025 Thank you everyone for suggestions. @VIRTUALENVIRONS i have tested this version, but Sophia still doesn't recognise it. I have forwarded my client's sketchup file to the manufacturer, and they have adjusted it in Spaceclaim rather quickly and I have managed to put the order in. I have attached the VWX file that I have converted from Step file. I will look into this software and as @Steve S. suggested it might be the right solution. I am still dedicated to get it working with Vectorworks, but perhaps the prep work can happen there and after I need to adjust it elsewhere... MetalBends_that_works.vwx Quote Link to comment
P Retondo Posted April 16, 2025 Share Posted April 16, 2025 As Steve S. points out, the calculation of a bend allowance, or a bend deduction (depending on how you are thinking about it), is complicated. It depends on the thickness of the material, and the k coefficient, which depends on the type of material. It also depends on the type of bending process used. I use SendCutSend to do sheet product fabrication, and they have a calculator built into their web ordering tool. Their calculation and one done from pure theory are slightly different, but it works. Check it out - you can get an instant quote once you upload your design, for laser cutting, deburring and bending. Not as good as a custom metal worker would produce, but fast and economical. I wouldn't recommend getting mechanical engineering software if you only do this kind of work occasionally, you can crank it out old-style. 3 Quote Link to comment
P Retondo Posted April 16, 2025 Share Posted April 16, 2025 Example: The design: The technical drawings: 2 Quote Link to comment
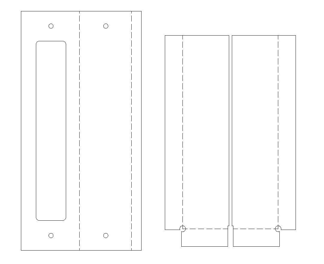
propstuff Posted April 16, 2025 Share Posted April 16, 2025 Presumably the Sophia software is taking care of the bend allowance etc when it prepares the file for production (??) so this complicated part of the process does not need to be included in your supplied file. A couple of points to note: Where folds meet a change of direction or other condition, accomodation needs to be made. You can see this in the "File that Works" you attached. Where the "U" section stops being a U and becomes the flat "L" there is a slot between the two conditions. This was probably done by Spaceclaim as part of it's manufacturing toolset. You can see a similar process in the file attached by Pete above. In the unfolded drg you can see allowance holes included at the junctions where the folds will meet. In the attached file I started making an example as I would normally, but when it came to apply the 3D fillets it produced an effective impossibility. (circled in right isometric) In the second attempt the fold fillet was applied earlier in the process and then the solid added. This produced no impossibility, but still no allowance at the junction. The results as a Solid addition, and also converted to a generic solid are in red. It would be interesting if you could submit these to see if Sophia accepts them as valid objects. fold test.vwx 2 Quote Link to comment
Steve S. Posted April 17, 2025 Share Posted April 17, 2025 The was done with the sheet metal toolset in a mechanical CAD program The flat pattern was generated automatically Google search came up with this ----- The typical K-factor for 2mm thick mild steel sheet metal is approximately 0.446 The mechanical CAD program had a default bend K factor that was set to 0.45. So I left it at that 2 Quote Link to comment
NoodlesT Posted April 17, 2025 Author Share Posted April 17, 2025 (edited) 13 hours ago, propstuff said: Presumably the Sophia software is taking care of the bend allowance etc when it prepares the file for production (??) so this complicated part of the process does not need to be included in your supplied file. A couple of points to note: Where folds meet a change of direction or other condition, accomodation needs to be made. You can see this in the "File that Works" you attached. Where the "U" section stops being a U and becomes the flat "L" there is a slot between the two conditions. This was probably done by Spaceclaim as part of it's manufacturing toolset. You can see a similar process in the file attached by Pete above. In the unfolded drg you can see allowance holes included at the junctions where the folds will meet. In the attached file I started making an example as I would normally, but when it came to apply the 3D fillets it produced an effective impossibility. (circled in right isometric) In the second attempt the fold fillet was applied earlier in the process and then the solid added. This produced no impossibility, but still no allowance at the junction. The results as a Solid addition, and also converted to a generic solid are in red. It would be interesting if you could submit these to see if Sophia accepts them as valid objects. fold test.vwx 1.06 MB · 1 download Cannot open the file unfortunately, could you please perhaps save it in VWX 2024? Thanks! Edited April 17, 2025 by NoodlesT 1 Quote Link to comment
VIRTUALENVIRONS Posted April 17, 2025 Share Posted April 17, 2025 @NoodlesTTravelling for the last few days and today. Your first post was to create bends that were correct. There are many ways to do this, but methodology changes as the model gets more complex. Was the model is sent you the type of thing you wanted to do? I built it quickly before I left on this trip, so not to scale. If so, where do you want to go from there? This is a critical question? Also, who or what is Sophia I am sure she is a nice girl.😀 If you are sending VW geometry to a machining program, it may need to be exported as an IGES file. 1 Quote Link to comment
Steve S. Posted April 17, 2025 Share Posted April 17, 2025 (edited) In my post above with the 4 different views, the line widths were too big when zooming in. Tried to replace it above but the forum didn't allow me to edit the above post From Affinity.pdf Edited April 17, 2025 by Steve S. 2 Quote Link to comment
propstuff Posted April 17, 2025 Share Posted April 17, 2025 11 hours ago, NoodlesT said: Cannot open the file unfortunately, could you please perhaps save it in VWX 2024? Thanks! Here you go fold test v2024.vwx 1 Quote Link to comment
Steve S. Posted April 18, 2025 Share Posted April 18, 2025 (edited) Was curious to see how SENDCUTSEND would handle the file that @propstuff has above. With the little I know of sheet metal, I suspected it might be something SENDCUTSEND would want modified. Basically, it needed to be notched in two places. And the length with mild steel was limited to about 3 feet. And the closest thickness was 1.9mm. Or you would have to jump up to 2.6mm. So @propstuff, I am curious to know if you ran your design through TAILOR STEEL’s website. Were they able to do it as you have in the file above? There is a lot of different machines out there now days. Maybe TAILOR has something that SENDCUTSEND does not. Edited April 18, 2025 by Steve S. 1 Quote Link to comment
NoodlesT Posted April 18, 2025 Author Share Posted April 18, 2025 (edited) Hi everyone, thank you for your input! A combination of your advise worked out. @propstuff 2 orange models are the most accurate, the rest is also being accepted by Sophia but it looks at some of them as different parts. But orange 2 pieces are perfect! What worked out as well, is suggestion of @VIRTUALENVIRONS. I have exported files to IGS instead of STEP. Using files of @propstuff within STEP format is not working with Sophia. As soon as I converted them to IGS it works perfectly. @VIRTUALENVIRONS haha, Sophia is basically a platform that we use. Sophia® is an advanced online platform developed by 247TailorSteel for custom metal fabrication. It enables users to upload 2D or 3D designs for services like laser cutting, tube laser cutting, and bending. I will do more testing now with the files I have created and see if only the format of the file was the issue. Edited April 18, 2025 by NoodlesT spelling 2 Quote Link to comment
NoodlesT Posted April 18, 2025 Author Share Posted April 18, 2025 @propstuff perhaps I am asking too much, but it would be great to know how you created those 2 orange pieces from scratch. The bend in 2 directions is rather complicated for my knowledge. Thank you! Quote Link to comment
Steve S. Posted April 18, 2025 Share Posted April 18, 2025 (edited) @NoodlesT If you're curious to know if a STEP file of your part will work with Sophia, then export the attached VW file as a STEP, and give that a try with Sophia I used a STEP file with SENDCUTSEND and it worked no problem. Take a look at the video So for this file, I looked at @propstuff file again and used one of the orange parts to get the dimensions. 50 x 100 on the outside of the channel 550 overall height 196 overall width 2 thick 2 inside radius 50 lower than the top at front face See the attached 2024 VW file Also, I went back to the mechanical CAD program and made the notch a lot smaller, not nearly as high, all while working in the sheetmetal mode. I made it .5mm This worked no problem with SENDCUTSEND. So I figure it should work with Sophia. When working in the mechanical CAD program, I could try exiting out of the sheet metal mode, and then make the .5mm high notch not quite as deep. But I would be curious to know if Sophia would work with this STEP file before trying that. SEND CUT SEND.mov NOTCH.mov 50 x 100 x 550 v2024.vwx Edited April 18, 2025 by Steve S. Quote Link to comment
Recommended Posts
Join the conversation
You can post now and register later. If you have an account, sign in now to post with your account.
Note: Your post will require moderator approval before it will be visible.