High_Viz Posted May 25, 2024 Share Posted May 25, 2024 I’m setting up a new template file for UK domestic architecture, mostly housing. i need to set up a few multi page reports, like design and access statements, and feasibility reports. typically these reports tend to be about ten A4 pages long… how do you set yours up? One drawing sheet per page - or multiple pages per drawing sheet? any help welcomed Quote Link to comment
shorter Posted May 27, 2024 Share Posted May 27, 2024 On drawing per sheet and Publish... There are a few things in InDesign you can mimic in Vectorworks but takes some thinking ahead. Often you get to the end of the document and wish you had thought about how to create a contents page automatically, or edit the footer. 1 Quote Link to comment
Tom W. Posted May 27, 2024 Share Posted May 27, 2024 On 5/25/2024 at 2:42 PM, High_Viz said: like design and access statements Mine are separate Word docs. Do they need to be part of the VW file? Quote Link to comment
BartH Posted May 27, 2024 Share Posted May 27, 2024 We found that Converting Docs to PDFs, and then inserting the PDFs into Sheet layers as a reference works great. the PDF import prompts for a Page # so that Each insert keeps its page. If the Referenced PDF changes all of the inserted pages update too. Bart 2 Quote Link to comment
High_Viz Posted May 27, 2024 Author Share Posted May 27, 2024 9 hours ago, Tom W. said: Mine are separate Word docs. Do they need to be part of the VW file? Ideally I’d like to… especially setting up standard architects letters with addressee info pulled from the database Quote Link to comment
High_Viz Posted May 27, 2024 Author Share Posted May 27, 2024 (edited) I’ve not tried to reference word to pdf into vwx… I will have an experiment and come back. Thanks for sharing @Bart Hays Edited May 27, 2024 by High_Viz Quote Link to comment
High_Viz Posted May 27, 2024 Author Share Posted May 27, 2024 My thinking was to be able to control issue and revisions through the publish command… if I did it via multiple pages in the one sheet I could only have one title block in that sequence of sheets I think, I guess I could handle that by symbols for branding etc… but I could still have one title block to autofill document titles, revisions etc Quote Link to comment
Tom W. Posted May 28, 2024 Share Posted May 28, 2024 17 hours ago, High_Viz said: Ideally I’d like to… especially setting up standard architects letters with addressee info pulled from the database Be interested to know how you get on. Especially if you're talking about actually writing the DAS in VW. 1 Quote Link to comment
_James Posted June 3, 2024 Share Posted June 3, 2024 Vectorworks are "Actively Researching" Worksheet Pagination (i.e. splitting worksheets into separate pages) according to their roadmap . This has been that way for quite a while if I remember correctly though. Personally I think you would be much better off sticking to things like Word, Google Docs etc for things like letters and DASs - Vectorworks is not designed for formatting documents like this and as such isn't very good at it. I shudder at the thought of trying to format a worksheet in VW, I would rather go to the extra hassle of copying the data out and formatting it in Google Sheets (I don't use Excel, maybe the live link in VW makes this easier?) Good luck and as Tom W. says - I would be interested to know how you get on too. 1 Quote Link to comment
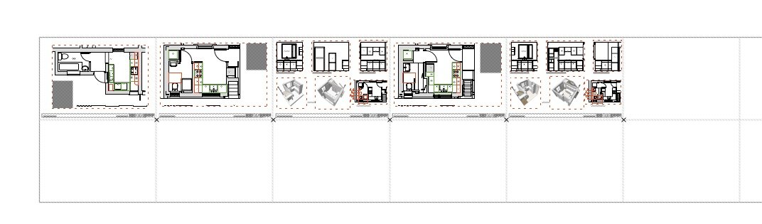
line-weight Posted June 3, 2024 Share Posted June 3, 2024 On 5/25/2024 at 2:42 PM, High_Viz said: typically these reports tend to be about ten A4 pages long… how do you set yours up? One drawing sheet per page - or multiple pages per drawing sheet? For the main drawing set it's one drawing sheet per sheet layer. But there are other things that I sometimes set up as a multi-page document on one sheet layer and it looks something like this Reasons I do this, are to make the document easier to lay out without having to flip between sheet layers, and it keeps my overall sheet layer list from becoming too unwieldy. When I want to produce a PDF I'll do "export pdf" and tell it to export pages 1 to n (in the above example, I'd say 1 to 5) - rather than using the Publish command (which I do use for the main drawing set). Typically I'll do this for things like stuff I send to clients (presenting design options for example) or sometimes things like D&A statements. For D&A statements, if they are lengthy I will often opt to use a proper layout application rather than doing it within vectorworks, mainly because Vectorworks is not good at dealing with large amounts of text content (doesn't allow you to flow it from page to page, and so on). 3 Quote Link to comment
line-weight Posted June 3, 2024 Share Posted June 3, 2024 On 5/27/2024 at 8:14 PM, High_Viz said: My thinking was to be able to control issue and revisions through the publish command… Be aware that the Publish command (as far as I know) can't talk to the bits of the Title Blocks / title block manager that deal with issues and revisions. I have just recently started using a drawing issue register that pulls issue/revision data from the title blocks (see this thread) but even in itself this is not totally easy/straightforward. (Prior to this, my issue register was just done manually) When you come to publish drawings this is basically a separate process - you still have to manually check that the set of drawings you're publishing matches the set that you've made as an "issue" using the title block manager. 1 Quote Link to comment
Tom W. Posted June 3, 2024 Share Posted June 3, 2024 2 minutes ago, line-weight said: Be aware that the Publish command (as far as I know) can't talk to the bits of the Title Blocks / title block manager that deal with issues and revisions. I have just recently started using a drawing issue register that pulls issue/revision data from the title blocks (see this thread) but even in itself this is not totally easy/straightforward. (Prior to this, my issue register was just done manually) When you come to publish drawings this is basically a separate process - you still have to manually check that the set of drawings you're publishing matches the set that you've made as an "issue" using the title block manager. I don't do this myself but you can use this button when you Publish: 1 Quote Link to comment
line-weight Posted June 3, 2024 Share Posted June 3, 2024 On 5/27/2024 at 8:14 PM, High_Viz said: if I did it via multiple pages in the one sheet I could only have one title block in that sequence of sheets I think, You can have multiple TBBs on a sheet layer (my example above has multiple TBBs) and you can get them to pull in things like project details. For main drawings, where you want to have automatic drawing number co-ordination and so on you need to have one drawing sheet per sheet layer, but there are various documents where this isn't necessary and it's in those cases that I'll put multiple pages on a sheet. Actually I realise I've not really tried to use the Title Block Manager on sheet layers that have multiple TBBs on them, but looking at it now, it does list each TBB separately so it looks like you could probably have multiple TBBs on a sheet and still manage things like issues/revisions individually. Quote Link to comment
line-weight Posted June 3, 2024 Share Posted June 3, 2024 3 minutes ago, Tom W. said: I don't do this myself but you can use this button when you Publish: Ah - didn't know that! Thanks! Thinking more about the OP's case - I guess that one can only have one series of "issues" running within a document (but maybe I'm wrong on that too) In other words, if you wanted to have the series of main drawing issues but also a series of issues of things like Architect's Instructions, or Valuations or whatever, I don't think you could do that, because maybe your Issue no. 1 of AIs would happen after you'd already done 3 issues of drawings, and so on. Quote Link to comment
line-weight Posted June 3, 2024 Share Posted June 3, 2024 3 hours ago, _James said: I shudder at the thought of trying to format a worksheet in VW, I would rather go to the extra hassle of copying the data out and formatting it in Google Sheets (I don't use Excel, maybe the live link in VW makes this easier?) For certain worksheets there's an advantage in keeping it within VW, if it's pulling info from the VW document, and you want it to be always up to date and not subject to errors that might happen in the export process. But yes, worksheets are horrible to format in VW. And the inability to split them over several pages (except with clunky methods involving viewports) is a major limitation and I wish it would be sorted soon. 1 Quote Link to comment
High_Viz Posted June 5, 2024 Author Share Posted June 5, 2024 On 6/3/2024 at 2:23 PM, line-weight said: For the main drawing set it's one drawing sheet per sheet layer. But there are other things that I sometimes set up as a multi-page document on one sheet layer and it looks something like this Reasons I do this, are to make the document easier to lay out without having to flip between sheet layers, and it keeps my overall sheet layer list from becoming too unwieldy. When I want to produce a PDF I'll do "export pdf" and tell it to export pages 1 to n (in the above example, I'd say 1 to 5) - rather than using the Publish command (which I do use for the main drawing set). Typically I'll do this for things like stuff I send to clients (presenting design options for example) or sometimes things like D&A statements. For D&A statements, if they are lengthy I will often opt to use a proper layout application rather than doing it within vectorworks, mainly because Vectorworks is not good at dealing with large amounts of text content (doesn't allow you to flow it from page to page, and so on). This is a good example of the type of drawing booklet im trying to produce, I’ve realised in some title blocks you can have say drawing 302, page 1, page 2 etc so I’m going to experiment with that for making detail books of typical construction details within a file template, I’d done this in 2016 in Revit, and that was just imported autocad detail drawings to make publishing from revit easier so they were not linked details to the model, the details were just 2d lines and fills linked back to a detail ‘marker’ symbol that was put onto sections and plans etc just to show typical locations of the standard details… im just automating all the pain in the ass stuff so projects are quicker and so I can spend my time doing more of the stuff I enjoy doing, like designing, not setting up ‘ bespoke’ reports like D and A in each project from first principles. thanks for your help all… I feel like I’m getting somewhere now Quote Link to comment
line-weight Posted June 5, 2024 Share Posted June 5, 2024 1 minute ago, High_Viz said: This is a good example of the type of drawing booklet im trying to produce, I’ve realised in some title blocks you can have say drawing 302, page 1, page 2 etc so I’m going to experiment with that for making detail books of typical construction details within a file template, I’d done this in 2016 in Revit, and that was just imported autocad detail drawings to make publishing from revit easier so they were not linked details to the model, the details were just 2d lines and fills linked back to a detail ‘marker’ symbol that was put onto sections and plans etc just to show typical locations of the standard details… im just automating all the pain in the ass stuff so projects are quicker and so I can spend my time doing more of the stuff I enjoy doing, like designing, not setting up ‘ bespoke’ reports like D and A in each project from first principles. thanks for your help all… I feel like I’m getting somewhere now Let us know how you get on. One thing I've never quite got sorted out is automatic page numbering when I use this method (several pages on one sheet layer). The basic titleblocks I use say "page X of Y" and I set Y in the TBB style, and X in each TBB instance, but have to do both manually and I'm not actually sure if it's possible to do it automatically. 1 Quote Link to comment
_James Posted June 6, 2024 Share Posted June 6, 2024 On 6/3/2024 at 2:23 PM, line-weight said: But there are other things that I sometimes set up as a multi-page document on one sheet layer and it looks something like this Out of interest when you set up sheets like this, do you use automatic drawing coordination? If so, how do you give sheets unique names and numbers in your titleblock? I was considering using this to have some bathroom elevations and plans on one sheet number so that the internal elevation marker can just show one sheet number as it doesn't seem to be able to handle elevations across two sheets. Quote Link to comment
line-weight Posted June 6, 2024 Share Posted June 6, 2024 1 hour ago, _James said: Out of interest when you set up sheets like this, do you use automatic drawing coordination? If so, how do you give sheets unique names and numbers in your titleblock? I was considering using this to have some bathroom elevations and plans on one sheet number so that the internal elevation marker can just show one sheet number as it doesn't seem to be able to handle elevations across two sheets. I use Automatic Drawing Coordination for my main drawings (which are all one page per sheet layer). I don't make use of it for these sheets where I have multiple pages, because they are usually less formal and don't tend to have drawing/section numbers and so on. I just looked to see if the (simplified) title blocks I use on these sheets have ADC turned on and they do ... but I am not sure what would happen if I tried to make use of it! The title Block Manager is aware of the existence of these title blocks and it lists them like this (under the little arrows) I've never really explored how this works as far as ADC is concerned. Presumably ADC would need to know which viewports belong to which TBBs - that's straightforward when there's one TBB per sheet layer but if that's not the case ... can it understand that a viewport is "inside" a TBB? The "Publish" dialogue doesn't list the TBBs like that though - it just lists by the name of the sheet layer. So for example the publish command wouldn't let me publish just pages 1,2 and 3 on the "initial ideas" sheet layer. Quote Link to comment
Recommended Posts
Join the conversation
You can post now and register later. If you have an account, sign in now to post with your account.
Note: Your post will require moderator approval before it will be visible.